Farming Machine (2019)

Site: Yau Ma Tei Wholesale Fruit Market, Hong Kong

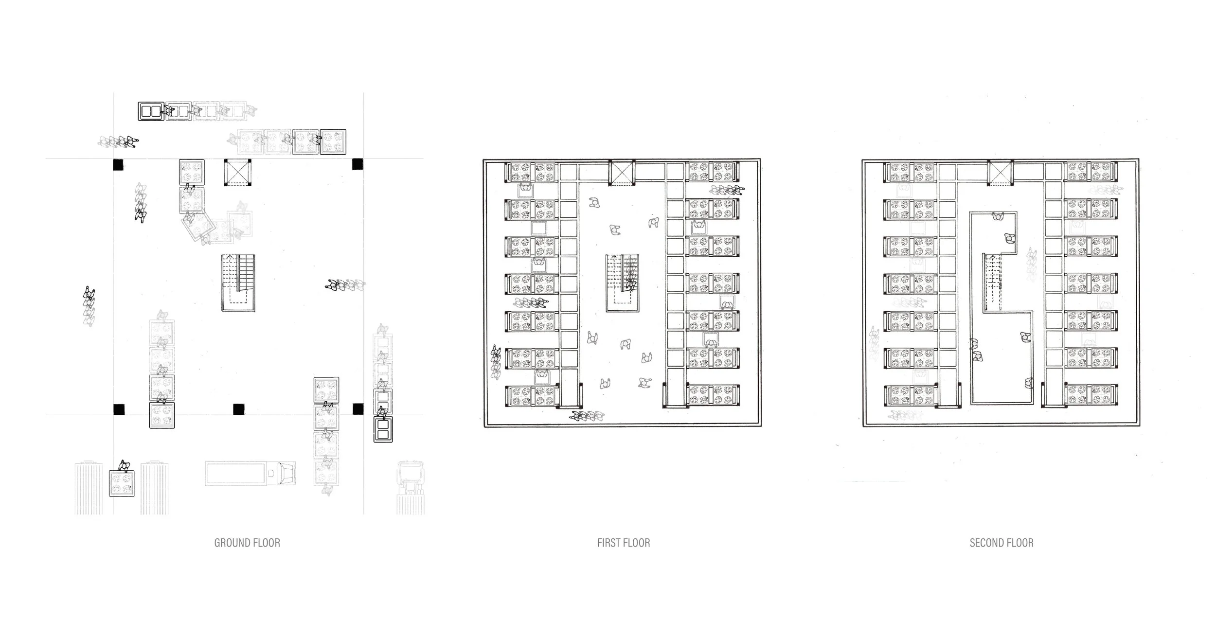
The project aims to supply fruits and vegetables to the fruit market in order to strengthen its self-sufficiency and competitiveness. Inspired by the study of the vertical expansion of existing shops and the urban voids, the structure is designed to grow and develop vertically, utilizing the potential space above the market.

The intersection point between daily retail and wholesale operations—at the periphery of the market and adjacent to the truck parking lot—is chosen as the location for the "Farming Machine." This location also takes advantage of the truck parking area to facilitate the distribution of crops and fruits to districts beyond the market.

Despite the official opening hours, some retail shops in the market operate 24/7, while wholesale activities run from midnight until morning. The “Farming Machine” will align with this pattern, integrating vertical farming and allowing visitors to observe harvests and farming processes for educational purposes.

Previous
Previous

Even if the world is like a bitter gourd《就算世界如涼瓜》(2019)

Next
Next

The Surplus Food Centre (2018)